Exposé Ext. ID# 282 11/2025

***RAUM, FREIHEIT UND RUHE: EINZIGARTIGES REIHENENDHAUS MIT GARTEN, NEBENGEBÄUDE UND GROSSEN MÖGLICHKEITEN***

  • Objekt-Nr:
    Ext. ID# 282 11/2025
  • Immobilienart:
    Doppelhaus
  • Vermarktungsart:
    Kauf
  • Adresse:
    Gasse 19a
  • 01561 Bauda
  • Region:
    Deutschland

Details zur Immobilie

Preise

  • Kaufpreis: 295.000,00 EUR
  • Nebenkosten inkl. Heizkosten: nein
  • Preis verhandelbar: geringfügig
  • Courtage / Provision: Käufer und Verkäufer zahlen jeweils 2,50% des Kaufpreises zzgl. gesetzlicher MwSt., jeder jedoch min. 6.812,50€ zzgl. gesetzlicher Mehrwehrtsteuer

Flächen

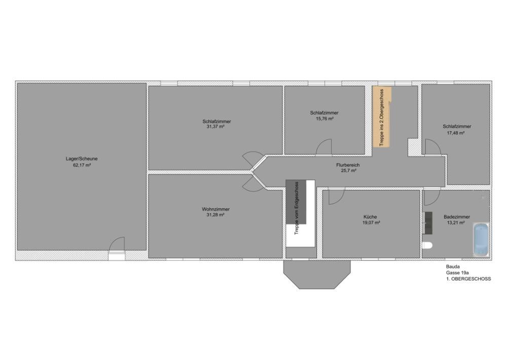
  • Wohnfläche: ca. 487,81 m²
  • Küchenfläche: ca. 37,5 m²
  • Flurfläche: ca. 40 m²
  • Zimmerzahl: 7
  • Anzahl Badezimmer: 3
  • Anzahl Wohnzimmer: 2
  • Anzahl Schlafzimmer: 5
  • Grundstücksfläche: ca. 1.482 m²
  • Gartenfläche: ca. 870 m²
  • Anzahl Stellplätze: 5
  • Stellplatzart: Carport, Garage

Ausstattung

  • Art der Ausstattung: normal
  • Gesamtetagenzahl: 3
  • Heizungsart: Zentralheizung
  • Befeuerung: Öl
  • Bodenbelag: Beton, Fliesen, Laminat, Teppich
  • Bauart des Hauses: Massivhaus
  • Küche: Wohnküche
  • Badezimmer: mit Badewanne, mit Dusche, mit Fenster
  • weitere Räume: Abstellraum, Gäste-WC, Heizraum, Hobbyraum, Wasch-/ Trockenraum
  • Garten /-nutzung: ja
  • Technik: Kabel- oder Satelliten-TV
  • Verglasung: Schallschutz, doppelt verglast
  • möbliert: teilweise
  • Fenster: Kunststoff
  • Rollladen: ja
  • Rollladen (Art): Kunststoff
  • Türen (außen): Kunststoff
  • Türen (innen): Furnier
  • Brunnen: ja
  • Baumbestand: ja

Umfeld

  • Distanz zum Bus: ca. 290 m
  • Distanz zum Fernbahnhof: ca. 6,4 km
  • Distanz zum Flughafen: ca. 36,1 km
  • Distanz zur Autobahn: ca. 21,1 km
  • Distanz zur Kindertagesstätte: ca. 5,2 km
  • Distanz zur Grundschule: ca. 5,2 km
  • Distanz zum Gymnasium: ca. 7,4 km
  • Distanz zum See: ca. 4,8 km
  • Distanz zu Sportanlagen: ca. 650 m

Zustandsangaben

  • Baujahr: 1900
  • Zustandsart: gepflegt
  • Sanierungsjahr: 1995
  • Sanierung (in %): 80
  • Renovierung (in %): 50

Verwaltung

  • Nutzungsart: Garten, Wohnen
  • denkmalgeschützt: nein

Energieausweis

  • Energieausweis vorhanden: nein